Diumenge, 21 de desembre de 2025
Comencen les obres del nou pàrquing al parc del Riu Ripoll
-Urbanisme-
29/01/2008
A mitjan gener van començar les obres de construcció del nou pàrquing subterrani del parc del Riu Ripoll. La construcció i explotació d'aquest aparcament anirà a càrrec de l'empresa Aubarel,S.L, per un període de 50 anys. L'obra tindrà un cost superior als 4,6 milions d'euros i comptarà amb 274 places, 3 de les quals seran per a persones discapacitades. A més, l'empresa cedirà 12 places a l'Ajuntament de Ripollet i posarà a la venda 234 amb un preu de 1.972 euros el metre quadrat, IVA inclòs. Les 28 restants seran de rotació.
Segons el conveni signat entre l'empresa i l'Ajuntament les places de rotació s'estableix que les tarifes seran de 1,20 €/hora pel pàrking públic i de 70 €/mes per al lloguer de cada plaça, IVA inclòs. Degut a les obres, que tenen una durada prevista de 14 mesos, s'han col·locat murs de maó i tanques per delimitar els espais de pas. També han quedat afectades una part de les places d'aparcament en superfície i del jardí, que serà restituït una vegada acabin els treballs.
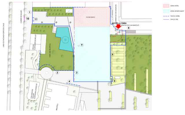
Per consultar els accessos a la zona del parc, podeu consultar el mapa de la foto adjunta.
F.R.
A mitjan gener van començar les obres de construcció del nou pàrquing subterrani del parc del Riu Ripoll. La construcció i explotació d'aquest aparcament anirà a càrrec de l'empresa Aubarel,S.L, per un període de 50 anys. L'obra tindrà un cost superior als 4,6 milions d'euros i comptarà amb 274 places, 3 de les quals seran per a persones discapacitades. A més, l'empresa cedirà 12 places a l'Ajuntament de Ripollet i posarà a la venda 234 amb un preu de 1.972 euros el metre quadrat, IVA inclòs. Les 28 restants seran de rotació.
Segons el conveni signat entre l'empresa i l'Ajuntament les places de rotació s'estableix que les tarifes seran de 1,20 €/hora pel pàrking públic i de 70 €/mes per al lloguer de cada plaça, IVA inclòs. Degut a les obres, que tenen una durada prevista de 14 mesos, s'han col·locat murs de maó i tanques per delimitar els espais de pas. També han quedat afectades una part de les places d'aparcament en superfície i del jardí, que serà restituït una vegada acabin els treballs.
Per consultar els accessos a la zona del parc, podeu consultar el mapa de la foto adjunta.
F.R.
Altres continguts recents amb la mateixa tipologia:
- Nova sessió del projecte Repensem l'N-150 [Notícies]
- El Pla d'usos de la Casa del Pont Vell proposa museïtzar espais i crear-ne de nous [Notícies]
- L'Ajuntament comença a adjudicar els projectes d'obres que es van aturar durant la pandèmia [Notícies]
- El Pla d'accessibilitat de Ripollet, en procés de redacció [Notícies]
- Ripollet va participar de la sessió ciutadana per repensar la N-150 [Notícies]
- Ripollet participa a la sessió ciutadana per a repensar la carretera N-150 [Notícies]
- Presentat l'estudi de l'espai públic Històric de Ripollet [Notícies]
- Col·lectiu Brusi guanya el concurs d'idees de l'edifici públic de Pinetons amb '3 en ratlla' [Notícies]
- L'Ajuntament treballa amb els agents socials i econòmics per un comerç sense barreres [Notícies]
- Endega el procés participatiu 'Tu tens la clau' per definir el Pla Local d'Habitatge [Notícies]
- Nova sessió del projecte Repensem l'N-150 [Notícies]
- El Pla d'usos de la Casa del Pont Vell proposa museïtzar espais i crear-ne de nous [Notícies]
- L'Ajuntament comença a adjudicar els projectes d'obres que es van aturar durant la pandèmia [Notícies]
- El Pla d'accessibilitat de Ripollet, en procés de redacció [Notícies]
- Ripollet va participar de la sessió ciutadana per repensar la N-150 [Notícies]
- Ripollet participa a la sessió ciutadana per a repensar la carretera N-150 [Notícies]
- Presentat l'estudi de l'espai públic Històric de Ripollet [Notícies]
- Col·lectiu Brusi guanya el concurs d'idees de l'edifici públic de Pinetons amb '3 en ratlla' [Notícies]
- L'Ajuntament treballa amb els agents socials i econòmics per un comerç sense barreres [Notícies]
- Endega el procés participatiu 'Tu tens la clau' per definir el Pla Local d'Habitatge [Notícies]
AGENDA
Exposició: "Andreu Solà. La mirada d'un ripolletenc a la Catalunya Modernista"
Notícies Destacades
Versió en proves d'info.ripollet.cat, l'actualitat de la ciutat al teu abast
Pendent de validació W3C/WCAG. Es possible que la visualització no sigui òptima en tots els navegadors.
Redacció i estil: Regidoria de Comunicació | Desenvolupa: Serveis informàtics
2011 © Ajuntament de Ripollet - 93 594 20 48 - info@ripollet.cat | Nota legal

